




- Tuotekoodi: 8127440
- Takuu: 5 vuotta
- Tilaamme tuotteen varastoon.Tuote toimitetaan 1-3 arkipäivässä.
- Toimituskulut alkaen 12,90 €Nouto myymälästä (tai ostaessasi asennuspalvelun kodinkoneisiin)0,00 €
Enston Beta-EP -virtauslämmittimet täyttävät EcoDesing-vaatimukset. Lämmittimet ovat turvallisia, älykkäitä sekä energiatehokkaita. Lämmittimet sopivat niin koteihin kuin vapaa-ajankohteisiin.
- Turvallisuus: Alhainen pintalämpötila ja ylikuumenemissuoja
- Älykkyys: Nopeasti reagoiva lämmityksen ohjaus ja Ensto Heat Control-sovellus
- Energiatehokkuus: Lämmittävät huoneilmaa - eivät rakenteita, hyötysuhde lähes 100%. Lepovirtakulutus <0,3W
Beta-EP -virtauslämmittimet ovat kiinteästi asennettavia pistotulpallisia malleja. Enston Beta-EP-lämmittimissä on tarkka ja täysin hiljainen elektroninen älytermostaatti. Lämmittimen termostaattia voi ohjata suoraan termostaatista tai erikseen ladattavalla Bluetooth-applikaatiolla (Android ja iOS). Applikaation avulla voidaan seurata energiankulutusta, hallita ja säätää lämmitysaikatauluja esim. loma-ajoilla sekä tarvittaessa tehostaa lämmitystä. Lämmittimeen voi kytkeä rinnakkaislämmittimiä ja sillä voi ohjata langattomasti max.10 Enston Bluetooth-lämmitintä.
Tuotekoodi: 81 274 40
Valmistaja/Maahantuoja: Ensto
Tuotesarja: Ensto BETA-BT-EP
Kuvaus: Virtauslämmitin elektronisella termostaatilla ja pistotulpalla
Tyyppi: BETA20-BT-EP
Kotelointiluokka: IP21
Jännite: 230V
Teho: 2000W
Lämpötilan säätö: 5-30 °C
Säätötapa: Elektroninen
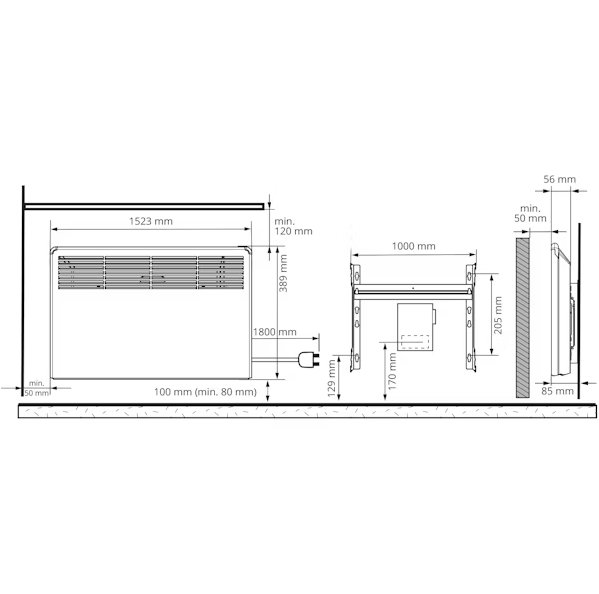
Leveys: 1523mm
Korkeus: 389mm
Paino: 7,9kg
Takuu: 5v
Väri: Valkoinen (RAL 9010)